TU VIVIENDA ORIGINAL Y PERSONALIZADA...
¡GESTIONAMOS TU CONSTRUCCIÓN...Ferrol. La Coruña.!

Anterior tipob100 Siguiente

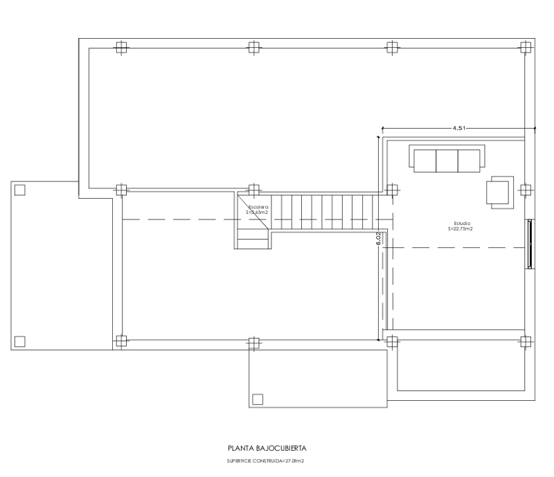
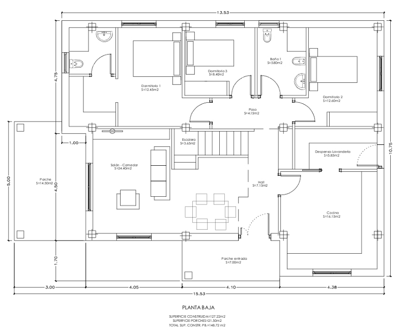
Planta baja y bajocubierta con 3 dormitorios

descargarCalidades descargarContrato tipo

En cada uno de nuestros modelos le presentamos una descripción detallada de la memoria de calidades, la cual puede extender con nuestra sección de productos. Además ponemos a su disposición los planos de plantas y alzados, así como en muchos casos una imágen de la maqueta que se ha realizado de la vivienda. Por último y como no podía ser menos, detallamos el presupuesto de ejecución material de la obra, por la que nos comprometemos a ejecutarla, siempre previa consulta, y en las especificaciones generales que se detallan en el apartado de modelo contractual.

jQuery lightBox plugin